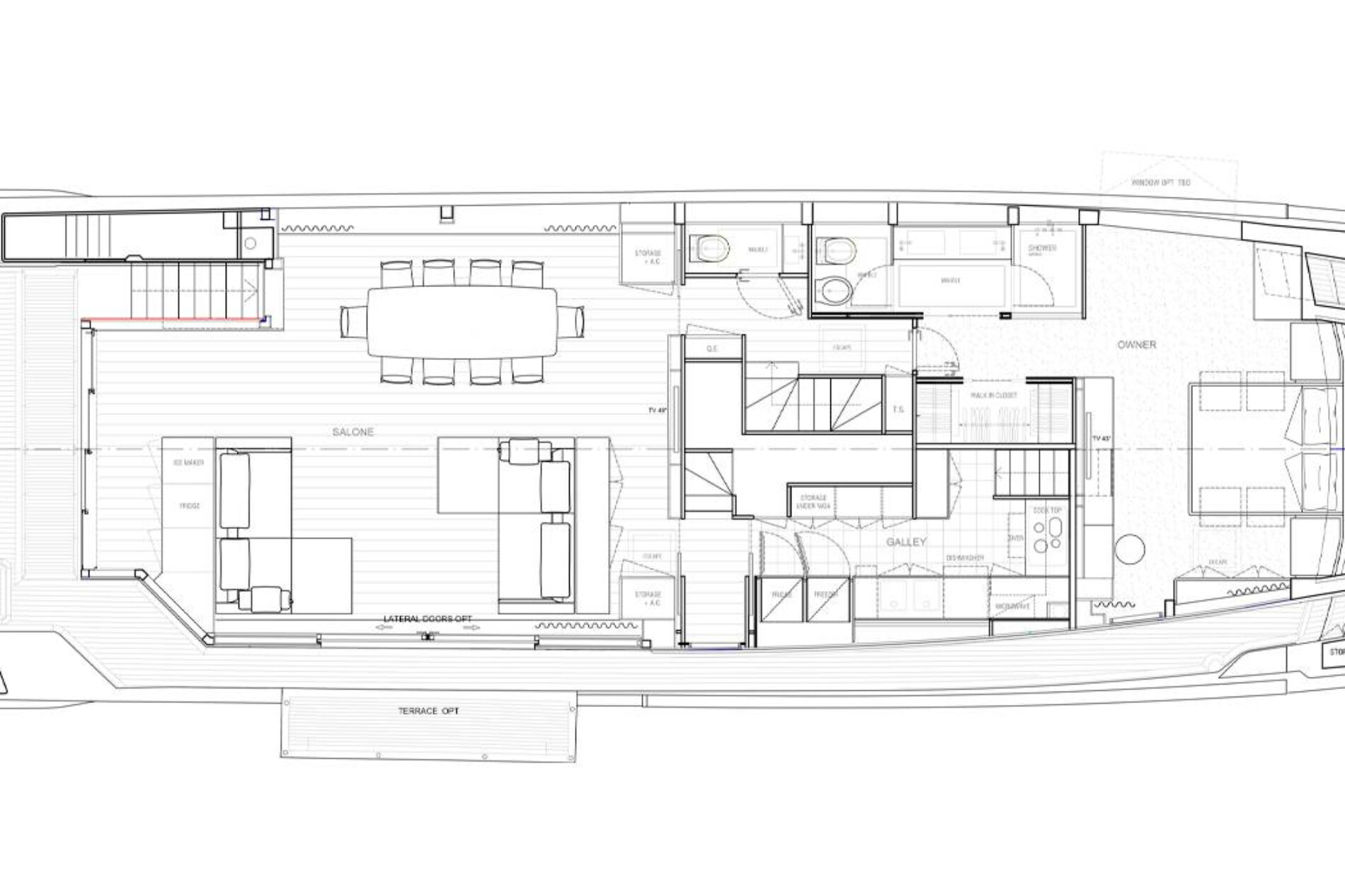
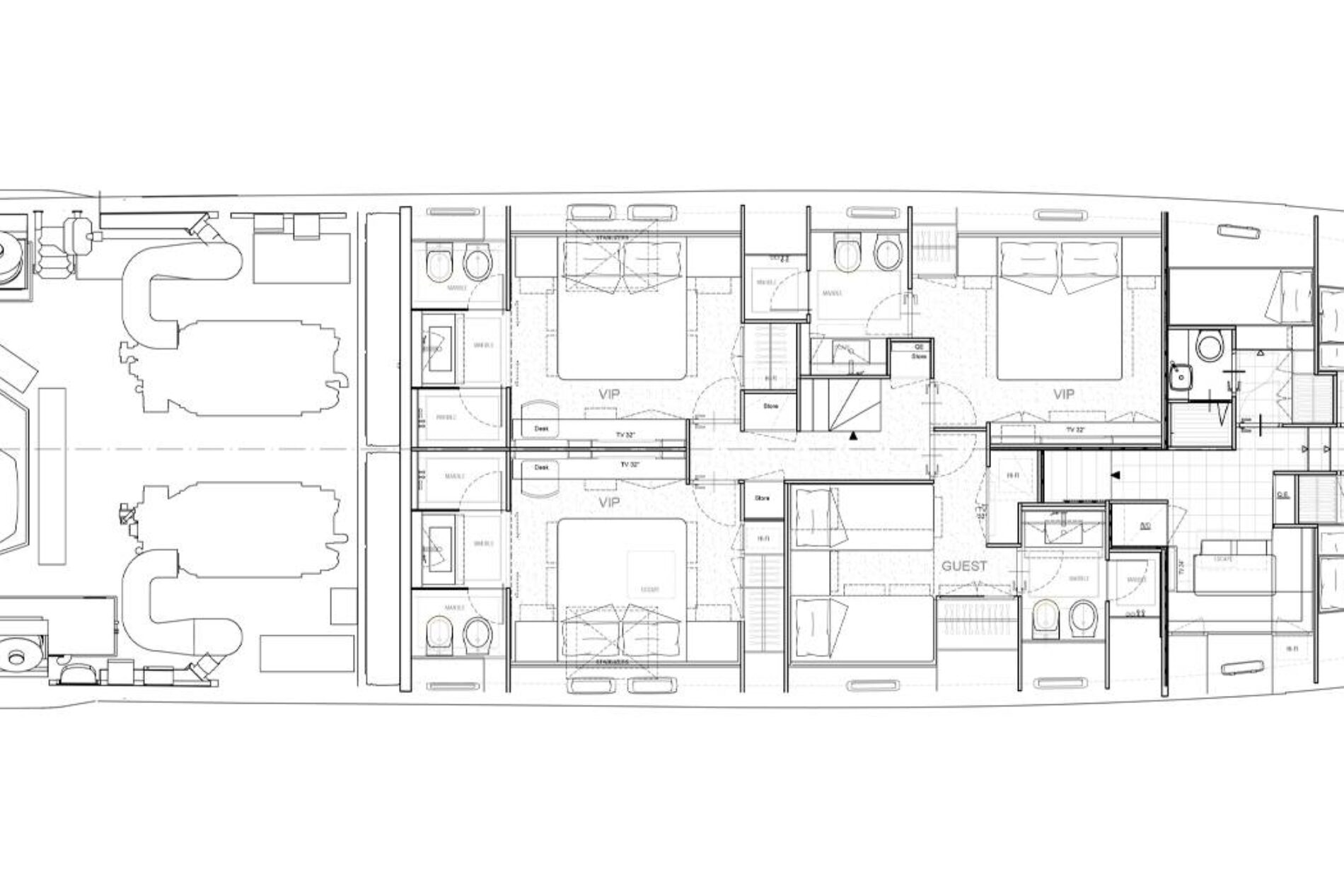
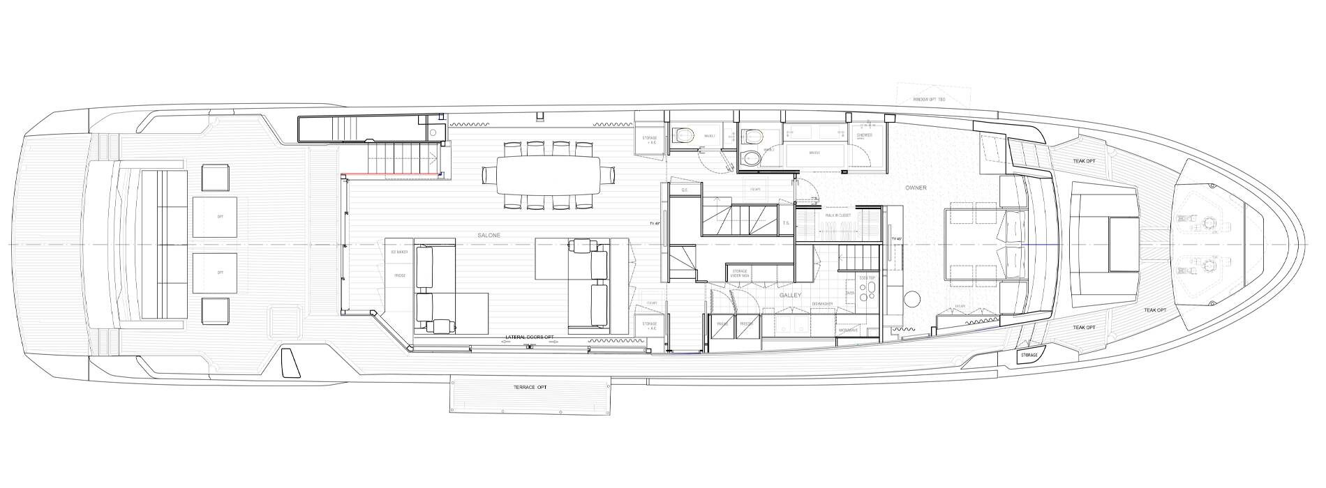
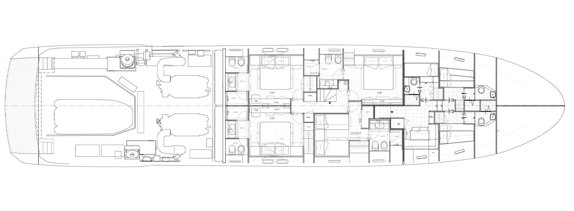
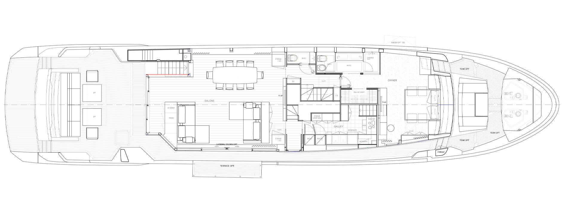
Asimetričan poput prirode, poput ljudskog tijela, poput kuće. Uživajte u moru na motornoj jahti koja ide korak dalje od ostalih i otvara proširena staništa. S ciljem stvaranja bolje iskoristivosti unutarnjih prostora i boljeg pristupa vanjskim područjima, SL106 Asymmetric obnavlja izgled jahte i kroz ovu asimetričnu konfiguraciju omogućuje dodatnu vrijednost od približno 10 četvornih metara unutarnjeg prostora.
dana
Sati
minuta
Info
Važne poveznice do vaše jahte iz snova
Preuzmite brošuru ovdje ili konfigurirajte vlastitu jahtu iz snova. Također možete iznajmiti jahtu ili nam direktno poslati upit. Ili možete koristiti naš kalkulator ulaganja u jahte.
Specifikacije
OBLIKOVATI Sanlorenzo SL106A
Ukupna dužina: 32,28 m
Maksimalna širina: 7,06 m
Gaz potpuno natovaren: 1,92 m
Motori: 2 x CAT Acert C32B – 2434 KS
Snaga motora (opcionalno): 2 x MTU 16V 2000 M96 – 2434 KS
Najveća brzina: 28 čvorova
Zapremina spremnika goriva: Ulje - 12.100 litra
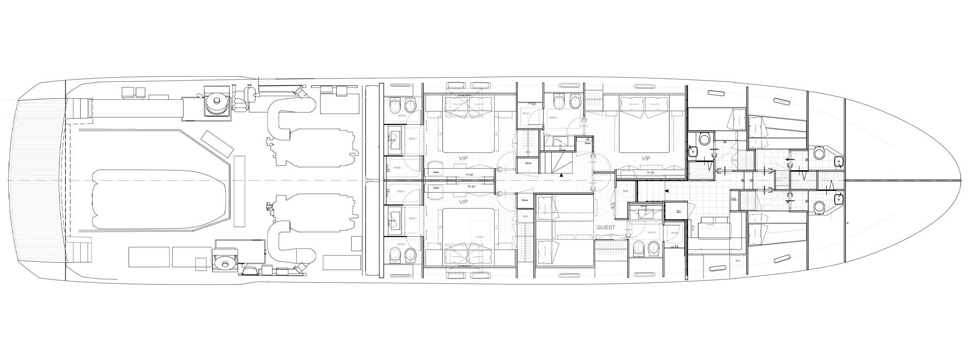
Smještaj gostiju: 10
Smještaj posade: 5
Ukupna dužina: 32,28 m
Maksimalna širina: 7,06 m
Gaz potpuno natovaren: 1,92 m
Motori: 2 x CAT Acert C32B – 2434 KS
Snaga motora (opcionalno): 2 x MTU 16V 2000 M96 – 2434 KS
Najveća brzina: 28 čvorova
Zapremina spremnika goriva: Ulje - 12.100 litra
Smještaj gostiju: 10
Smještaj posade: 5
DIZAJN
EKSTERIJERA
SL106 Asymmetric karakterizira nepogriješivi Sanlorenzo stil. Kombinira eleganciju, uravnotežen prostor i savršenu proporciju u korištenju prostora, kao i izniman broj inovacija, ne zanemarujući identitet linije Sanlorenzo jahti.
DIZAJN
ENTERIJERA
TREBA JEDAN
FINANCIRANJE?
Sanlorenzo SL106A Kalkulator financiranja
Ovaj kalkulator financiranja služi samo u informativne svrhe i ne predstavlja savjete. Rezultati se temelje na podacima koje unesete i kamatnim stopama i uvjetima koji su na snazi u trenutku izračuna. Stvarni uvjeti mogu varirati i ovise o pojedinačnim kreditnim provjerama i važećim smjernicama financijskih institucija.
Ne preuzimamo nikakvu odgovornost za točnost, potpunost ili pravodobnost izračunatih rezultata. Kalkulator financiranja koristite na vlastitu odgovornost. Preporuča se da prije sklapanja ugovora o financiranju potražite detaljan savjet od kvalificiranog financijskog savjetnika ili banke.
Izričito je isključena svaka odgovornost za izravnu ili neizravnu štetu nastalu korištenjem kalkulatora financiranja.




















